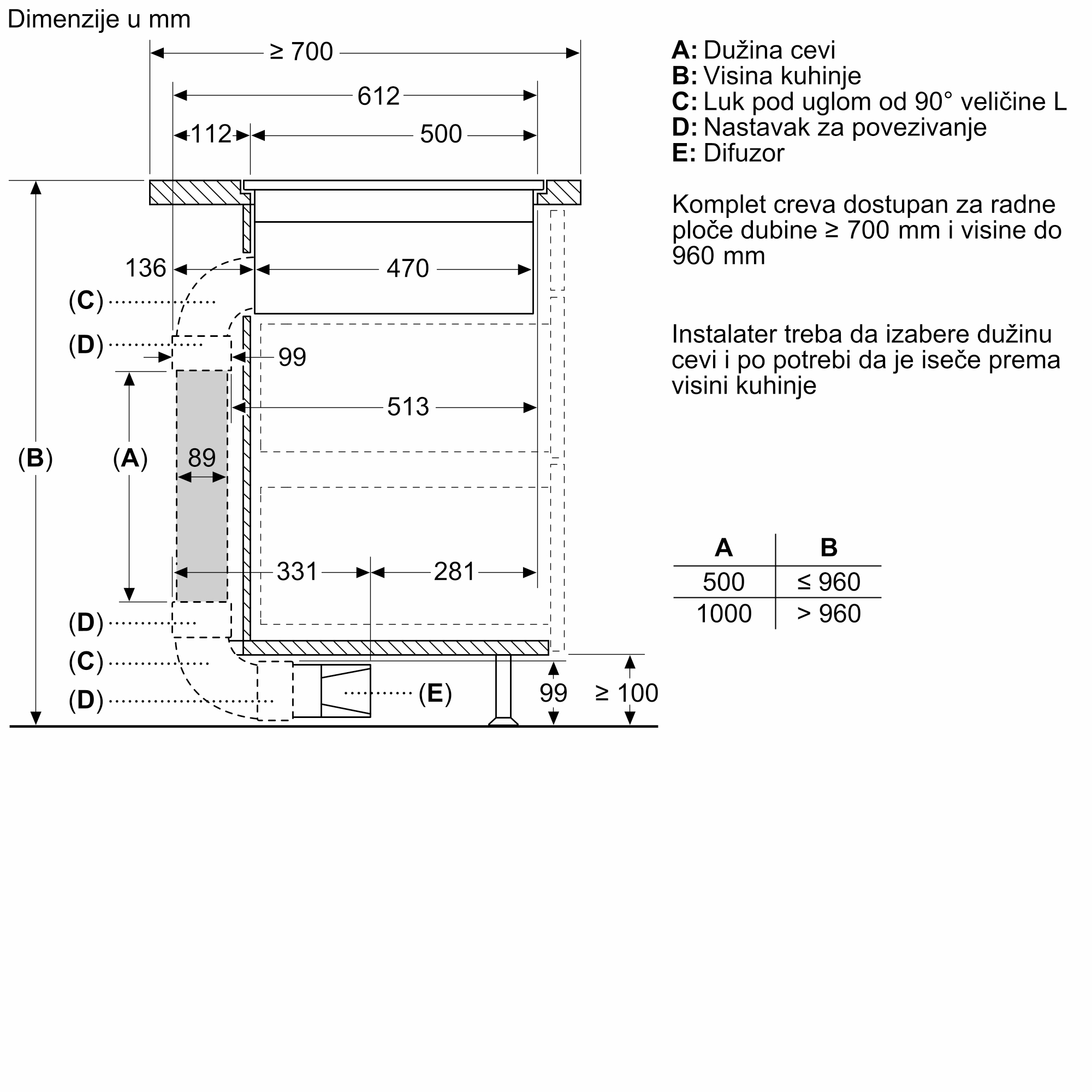
Ploča sa aspiratorom accent line Serija 8 80 cm ugradnja u ravni radne ploče PXX820D51E
Praznična akcija
Ploča sa aspiratorom accent line Serija 8 80 cm ugradnja u ravni radne ploče PXX820D51E
-
Detaljnije
- 299.490 RSD
- Uštedi: 37.000 RSD
- Puna cena: 336.490 RSD
- Ugrađeni element za ventilaciju: upija paru i mirise već na samom početku kuvanja.
- DirectSelect Premium: interfejs na dodir koji je pregledan i lak za upotrebu.
- FlexInduction prilagodljiva indukciona ploča: veća prilagodljivost vaše ploče za kuvanje za velike šerpe i tiganje.
- PerfectFry funkcija za savršeno prženje: kažite zbogom zagoreloj hrani.
- Home Connect: kućni aparati sa pametnim povezivanjem – upravljanje kućnim aparatima putem mobilne aplikacije za lakšu svakodnevicu.
Praznična akcija
Traje do: 22.02.2026.
Načini plaćanja
Platnim karticama, Pouzećem, IPS QR kod
O UREĐAJU
Indukciona ploča za kuvanje sa integrisanim modulom ventilacije udružuje indukciju sa tehnologijom ventilacije radi ostvarivanja najboljih rezultata.
Detaljna specifikacija
Generalno
- Izaberite drugi proizvod
- Izaberite drugi proizvod































