Ploča sa aspiratorom accent line Serija 8 80 cm PXX801D57E
Uporedi
TEHNIČKI PODACI
- Širina: 80 cm
- Broj indukcijskih ploča: 4
Ploča sa aspiratorom accent line Serija 8 80 cm PXX801D57E
-
Detaljnije
- 268.990 RSD
- Uštedi: 33.000 RSD
- Puna cena: 301.990 RSD
- Ugrađeni element za ventilaciju: upija paru i mirise već na samom početku kuvanja.
- DirectSelect Premium: interfejs na dodir koji je pregledan i lak za upotrebu.
- FlexInduction prilagodljiva indukciona ploča: veća prilagodljivost vaše ploče za kuvanje za velike šerpe i tiganje.
- PerfectFry funkcija za savršeno prženje: kažite zbogom zagoreloj hrani.
- Home Connect: kućni aparati sa pametnim povezivanjem – upravljanje kućnim aparatima putem mobilne aplikacije za lakšu svakodnevicu.
Načini plaćanja
Platnim karticama, Pouzećem, IPS QR kod
O UREĐAJU
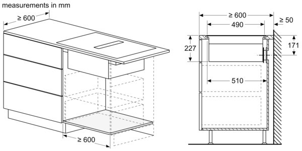
Indukciona ploča za kuvanje sa integrisanim modulom ventilacije udružuje indukciju sa tehnologijom ventilacije radi ostvarivanja najboljih rezultata.
TEHNIČKI PODACI
- Širina: 80 cm
- Broj indukcijskih ploča: 4
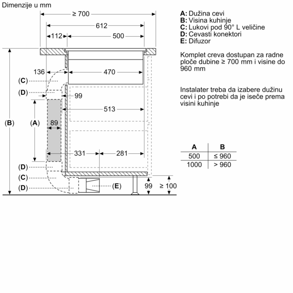
Tehnički crteži i uputstva
Detaljna specifikacija
Generalno
- BojaCrna
- Širina80 cm
- Dimensions of the heating elements1 x (40,0 x 24,0 cm), 1 x (40,0 x 24,0 cm)
- Power of the heating elements4 x 2.2 (3.7) kW
- Frame typeFlush fitting
- Broj polja od livenog gvožđa0
- Broj indukcijskih ploča4
- zagrevanje sa dodatnim generatoromAll
- Elementi za upravljenjeDirect Select 2.0frontilluminated
- DelovanjeMoguće pretvoriti
- Max. protok vazduha - odvođenje vazduha500 m³/h
- Snaga duvanja kod intenzivnog odvođenja vazduha622 m³/h
- Max. protok vazduha - kruženje vazduha500 m³/h
- Snaga duvanja kod intenzivne recirkulacije vazduha615.0 m³/h
- Sound power at max. speed (2010/30/EC)69 dB
- Sound power boost (2010/30/EC)74 dB
- Nivo buke69 dB(A) re 1 pW
- Ugrađen dodatni pribor1 x Clean Air Standard filter za mirise
- Izaberite drugi proizvod
- Izaberite drugi proizvod































