Ploča sa aspiratorom Serija 6 80 cm ugradnja bez okvira PVQ811H26E
Nedeljna akcija
Ploča sa aspiratorom Serija 6 80 cm ugradnja bez okvira PVQ811H26E
-
Detaljnije
- 208.493 RSD
- Uštedi: 69.498 RSD
- Puna cena: 277.990 RSD
- Ugrađeni element za ventilaciju: upija paru i mirise već na samom početku kuvanja.
- DirectSelect: direktan, jednostavan izbor željene zone kuvanja, jačine i dodatnih funkcija.
- CombiZone kombinovana zona: kombinuje dve indukcione zone kuvanja kojima se zagreva veliko posuđe.
- AutoOn funkcija: automatski uvlači paru kada se vaša ploča za kuvanje zagreje.
- PerfectFry Plus funkcija: više nema brige da će jelo zagoreti.
Načini plaćanja
Platnim karticama, Pouzećem, Na rate bez kamate, IPS QR kod
O UREĐAJU
Indukciona ploča za kuvanje sa integrisanim modulom ventilacije udružuje indukciju sa tehnologijom ventilacije radi ostvarivanja najboljih rezultata.
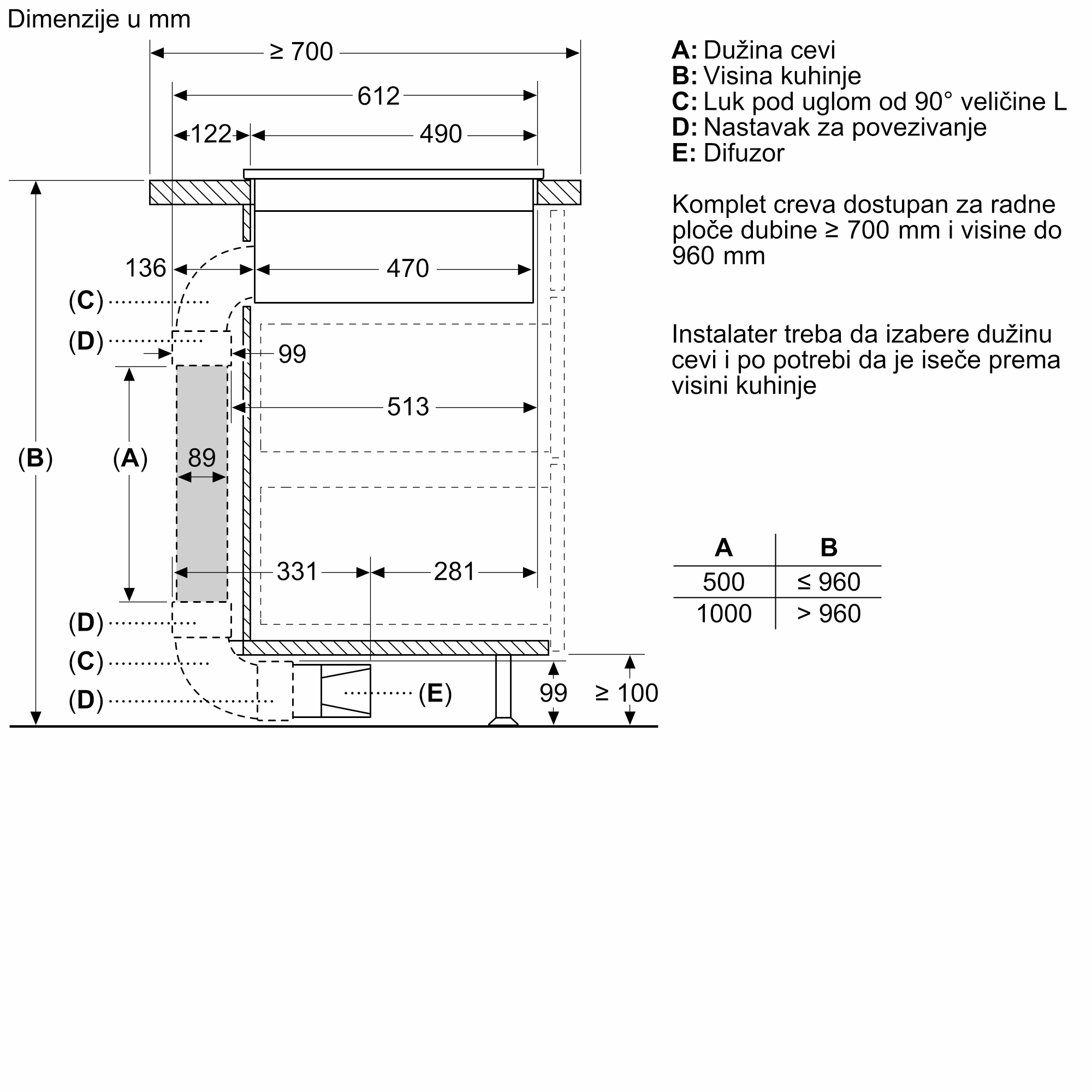
Tehnički crteži i uputstva
Detaljna specifikacija
Generalno
- Izaberite drugi proizvod
- Izaberite drugi proizvod































